Skip to content
BlueprintByNaufal
Services
Interior Drafting
3D Modeling & Visualization
As-Built Drawings
MEP (Mechanical, Electrical, Plumbing) Drafting
Structural Drafting
Architectural Drafting
About
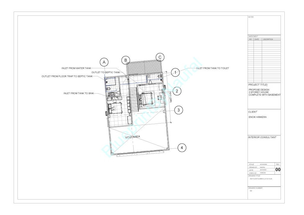
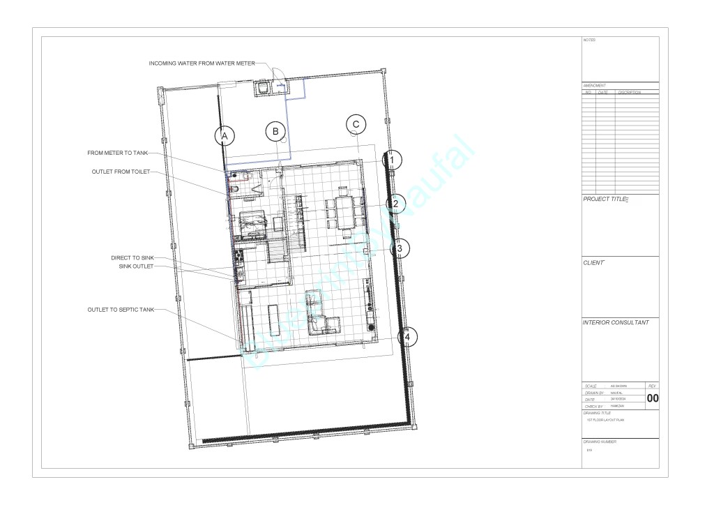
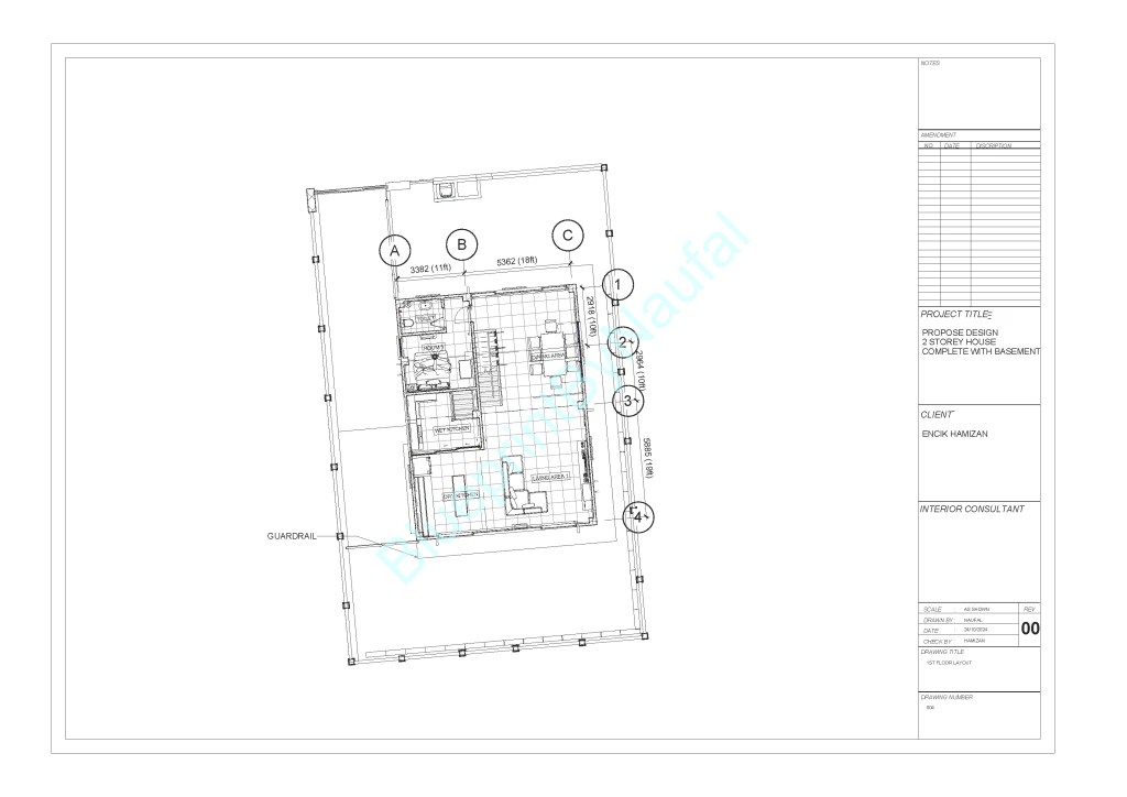
Bungalow 2 Storey With Basement
Dec 23, 2024
—
by
Naufal Syafiq
in
Architectural Drafting
Share this:
Share on X (Opens in new window)
X
Share on Facebook (Opens in new window)
Facebook
Like
Loading…
2DLayout
3Dlayout
3DRendering
House
Comments
Leave a comment
Cancel reply
Δ
←
Previous:
Football Field
Next:
HVAC Test Chamber
→
Comment
Reblog
Subscribe
Subscribed
BlueprintByNaufal
Sign me up
Already have a WordPress.com account?
Log in now.
BlueprintByNaufal
Subscribe
Subscribed
Sign up
Log in
Copy shortlink
Report this content
View post in Reader
Manage subscriptions
Collapse this bar
%d
Leave a comment